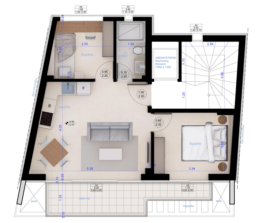
For sale under construction apartment of 68 sq.meters in Thessaloniki. The apartment is situated on the 1st floor. It consists of 2 bedrooms, living room with kitchen, one shower WC.
Flat has front layout. There are: heating. Building has an elevator. Extras included with the property: parking space.
The above information is based exclusively on information provided by the property owner to our company, which are subject to any typographical errors or price change by him.
PURSUANT TO LAW 4072/2012, IN ORDER TO VIEW THE PROPERTY, IT IS NECESSARY TO PROVIDE YOUR ID AND TAX NUMBER WHICH MUST ME INDICATED IN THE DEMONSTRATION AGREEMENT.
The indication on the map does not indicate the exact location of the property but the general area in which it is located. For any other information contact us.





























